איך לשרטט נגרות בצורה מדויקת ומקצועית

וובינר - WEBINAR
שיחסוך לך שעות של כאב ראש מול הנגר

את יודעת בדיוק איך את רוצה שהפרויקט ייראה,

אבל איכשהו, בין התכנון לבין מה שהנגר מבצע משהו מתפספס.

אם גם את מעצבת פנים או אדריכלית

ואת מוצאת את עצמך שוב ושוב מסבירה, מבהירה, ומקווה שהבינו אותך נכון – זה בדיוק בשבילך.

נגרות מושלמת מתחילה בשרטוט נגרות מקצועי וברור

וובינר בנושא: כלים לשרטוט נגרות מקצועי

שרטוט מדויק הוא הדרך שלך לשדר מקצועיות,
להעביר את הכוונה שלך בלי מילים – ולחסוך זמן, אנרגיה ותיקונים מיותרים.
כששרטוט הנגרות ברור, מדויק, ומפורט – אין מקום לפרשנות.
הביצוע קורה כמו שתכננת, בלי הפתעות, בלי “לא הבנתי”, ובלי שעות של הסברים ללקוח או לנגר.

מה יהיה בוובינר?

נעבור יחד על השלבים לשרטוט נגרות מקצועי:

  • מהם אבני היסוד ליצירת תוכנית נגרות ברורה ומקצועית?
  • מבנה ארגוני של שרטוט נגרות
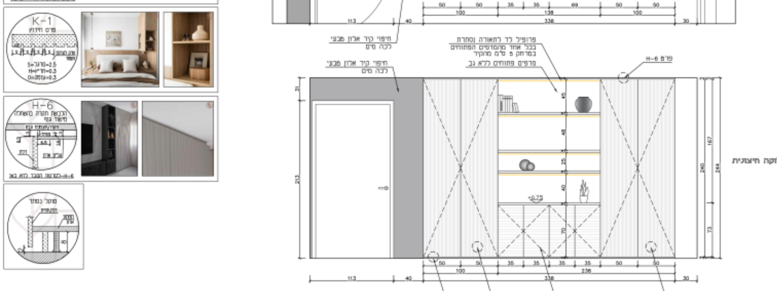
  • איך ליצור שרטוט מדויק עם הנחיות ייחודיות לכל ארון הכולל: תוכנית העמדה, חזית, פנים.
  • שילוב פרטי נגרות עם תמונת המחשה שתעזור ללקוחות ולנגר להבין בדיוק את השרטוט.
  • התייחסות לגודל חומרי הגלם בפועל.
  • טבלה קבועה שמרכזת פרזולים, חומרים ושונות.

למי הוובינר מתאים?

  • למעצבות ואדריכליות בתחילת הדרך, שרוצות לבנות שפה מקצועית מול הנגר
  • למי שכבר חוותה טעויות יקרות בתהליך הביצוע
  • לכל מי שמרגישה שהשרטוטים שלה “עובדים”, אבל אפשר (וצריך) הרבה יותר מדויק

עם מה תצאי מהוובינר?

  • ידע פרקטי ומקצועי שלא מלמדים בבתי הספר לעיצוב
  • כלים שיעזרו לך לנסח את הכוונה שלך בבירור
  • ביטחון שהשרטוט שלך מדבר את השפה של הנגר

 

 

ויש עוד בונוסים ופינוקים!

כל משתתפ/ת יקבל מאיתנו מתנה:

♥ 100 ₪ הנחה לרכישת ערכת פרטי הנגרות שלנו

♥ טבלת הנחיות לביצוע – מומלצת על ידנו

♥ שעת שרטוט חינם – מתנה חד-פעמית למי שתבחר להיעזר בשירות שרטוט דרכנו (בפרויקט מעל 10 שעות)

קישור לוובינר יישלח בקבוצת הוואטסאפ, וגם במייל, לפני הוובינר

אל תפספסי – הרשמי עכשיו >>

מספר המקומות במוגבל כדי לאפשר יחס אישי 

הוובינר יתקיים “אונליין” 

🗓 יום חמישי | 29.01.26 | 10:00-11:00

מי עומד מאחורי הוובינר?

אנחנו קבוצת להט – חיבורים וחומרים.
אנחנו מאמינים שעיצוב טוב מתחיל קודם כל בחיבור: בין רעיון לביצוע, בין אנשים, בין תכנון מדויק לחומר איכותי.

מי שיעביר את הוובינר הוא נתי להט – יזם, נגר ו”פריק” של טכנולוגיה וחדשנות.
ב-17 השנים האחרונות מנהל בגאווה נגריית הבוטיק ולאחרונה התחלנו לייבא גם מטבחים וריהוט מאיטליה.

המטרה שלנו היא לא רק לספק שירותים – אלא ליצור שפה משותפת. להפוך את תהליך הנגרות לשיתוף פעולה אמיתי. לאורך השנים ליווינו מאות מעצבות ואדריכליות.
הקמנו קהילה שמבוססת על שיתוף ידע, כלים מעשיים, והרבה אכפתיות.
נתי מעביר את סדנת “חומרים לנגרות – לא מה שחשבתם” כבר מעל 5 שנים, ומתמקד בין היתר בדיוק השרטוטים והתכנון.

הוובינר הזה הוא הזמנה להצטרף לקהילה שלנו, להעשיר את הידע שלך ולשפר את המקצועיות שלך בתחום הנגרות.

לקוחות מספרים

דילוג לתוכן